不動産情報
Estate
【NEW|新潟市東区新石山|2階建て3LDK】

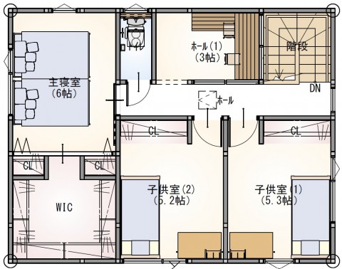
家族用ホールを抜けて、最短距離で玄関からキッチンへ。
買い物帰りも帰ってきてすぐ片付けられる。
冷蔵庫や収納に直行できて、毎日の家事も無駄なくスムーズ。
お子さまは玄関から洗面室を通って手洗い
そのままお隣さんの脱衣室へとつながって、洗濯物はポイッと完了。
来客は玄関から直通で14帖のLDKへとご案内。
ホールに設置した手洗い器がすぐに使えて、家族もお客さまも清潔で心地いい。
暮らしの気配を感じさせないスッキリとした空間です。
家中のどこからでも、どこへでも。
家族みんなが一人ひとりのスタイルで、効率的にスイスイ動ける。
日々の時間に余裕が生まれる、ゆとりを楽しむ住まいです。
土曜・日曜・祝日はもちろん、お仕事帰りの見学も大歓迎。
資金計画や価格のご相談など、お気軽にお問い合わせください♬
お問い合わせは簡単フォームで入力1分!

お問い合わせは簡単フォームで入力1分!
【NEW|新潟市東区新石山|2階建て3LDK】
この物件の見学予約はこちらから

お支払い例
この物件を購入した場合の、月々の支払い価格の一例です。(税込)
借入金額
2,990万円
頭金
0万円
ボーナス
5万円
月々返済
68,360円
頭金0円 変動金利0.48% 40年返済の場合 ボーナス2回/年 諸経費別途
【NEW|新潟市東区新石山|2階建て3LDK】に関するお問い合わせはこちら
周辺環境
-
新潟市立中野山小学校 徒歩11分(約850m)
-
新潟市立石山中学校 徒歩16分(約1,210m)
お問い合わせは簡単フォームで入力1分!

お問い合わせは簡単フォームで入力1分!
【NEW|新潟市東区新石山|2階建て3LDK】
この物件の見学予約はこちらから
物件概要
住所 | 新潟市東区新石山 | ||
---|---|---|---|
価格 | 3,962万円 | ||
建物面積 | 102.68m²(30.99坪) | ||
土地面積 | 130m²(39.24坪) | ||
交通 | -- | ||
間取り | 3LDK | 駐車場 | 2台可 |
地目 | 宅地 | 用途地域 | 第一種中高層住居専用地域 |
建ぺい率 | 60% | 容積率 | 200% |
設備 | バス1坪以上 温水洗浄便座 3口以上コンロ IHクッキングヒーター システムキッチン 全居室収納 ウォークインクローゼット シューズクローク 照明器具 省エネ給湯器 都市ガス 複層ガラス 全居室フローリング 電気 上下水道 エアコン モニタ付インターホン カードキー 火災報知器 オール電化 24時間換気システム 吹抜 高気密高断熱住宅 太陽光発電設備 | 道路 | 北西6.00m・北東6.00m 公道 |
構造・工法 | 木造軸組工法 | 完成時期 | 2025年9月新築 |
入居時期 | 相談 | 取引形態 | -- |
建築条件 | -- | ||
備考 | 施工会社:女性建築士と造るハナコの家 オフィスHanako株式会社 NK第23本01910号 |
||
情報登録日 | 2025.09.21 | 最終更新日 | 2025.10.11 |