不動産情報
Estate
【NEW|新潟市東区山木戸|2階建て3LDK】

栗ノ木バイパスまで車で6分
新潟駅まで車で約8分の好立地!
安全維持機能★★★の安心設計
家族が増えたり、お子さまが独立しても使いやすい、将来を考えた設計です。
キッチンは人気の「ウッドワン・ペニシュラン」を採用し、並列型のダイニングで配膳もラクラク。
便利なユーティリティーは寝室としても使えるフレキシブル設計。
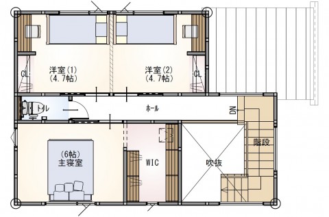
光と風を感じるオープン階段と吹き抜けで、解放感ある18帖のLDKが魅力です。
この住まいは、そんな変化に寄り添う工夫で長く快適に暮らせます。
土曜・日曜・祝日はもちろん、お仕事帰りの見学も大歓迎。
資金計画や価格のご相談など、お気軽にお問い合わせください♬
お問い合わせは簡単フォームで入力1分!

お問い合わせは簡単フォームで入力1分!
【NEW|新潟市東区山木戸|2階建て3LDK】
この物件の見学予約はこちらから

お支払い例
この物件を購入した場合の、月々の支払い価格の一例です。(税込)
借入金額
2,990万円
頭金
0万円
ボーナス
5万円
月々返済
68,360円
頭金0円 変動金利0.48% 40年返済の場合 ボーナス2回/年 諸経費別途
【NEW|新潟市東区山木戸|2階建て3LDK】に関するお問い合わせはこちら
周辺環境
-
新潟市立木戸小学校 徒歩6分(約470m)
-
新潟市立東新潟中学校 徒歩10分(約790m)
-
キューピット中山店 徒歩12分(約910m)
-
新潟信用金庫中山支店 徒歩7分(約500m)
-
セブンイレブン新潟山木戸店 徒歩2分(約120m)
-
ローソン新潟山木戸七丁目店 徒歩7分(約530m)
お問い合わせは簡単フォームで入力1分!

お問い合わせは簡単フォームで入力1分!
【NEW|新潟市東区山木戸|2階建て3LDK】
この物件の見学予約はこちらから
物件概要
住所 | 新潟市東区山木戸 | ||
---|---|---|---|
価格 | 4,450万円 | ||
建物面積 | 98.12m²(29.62坪) | ||
土地面積 | 145.64m²(43.96坪) | ||
交通 | -- | ||
間取り | 3LDK | 駐車場 | 3台可 |
地目 | 宅地 | 用途地域 | 第一種住居地域 |
建ぺい率 | 60% | 容積率 | 200% |
設備 | バス1坪以上 温水洗浄便座 3口以上コンロ IHクッキングヒーター システムキッチン 全居室収納 ウォークインクローゼット シューズクローク 照明器具 省エネ給湯器 都市ガス 複層ガラス 全居室フローリング 電気 上下水道 エアコン モニタ付インターホン カードキー 火災報知器 オール電化 24時間換気システム 吹抜 高気密高断熱住宅 太陽光発電設備 | 道路 | 東9.1m 公道 |
構造・工法 | 木造軸組工法 | 完成時期 | 2025年8月新築 |
入居時期 | 相談 | 取引形態 | -- |
建築条件 | -- | ||
備考 | 施工会社:女性建築士と造るハナコの家 オフィスHanako株式会社 NK第23本01910号 |
||
情報登録日 | 2025.09.20 | 最終更新日 | 2025.10.11 |